The Dow

They say the kitchen is the heart of a home, our Dow home is designed for life to flow around the kitchen. Glazed doors allow light to flow through the dining and living rooms.
Prices starting from £252,500
Property Type
House
Bedrooms
3
Bathrooms
1
Size
968 sqft
Book a Visit
Development
Address:
Viewforth Gardens,
Kirkcaldy
KY1 3DG
See on Google Maps

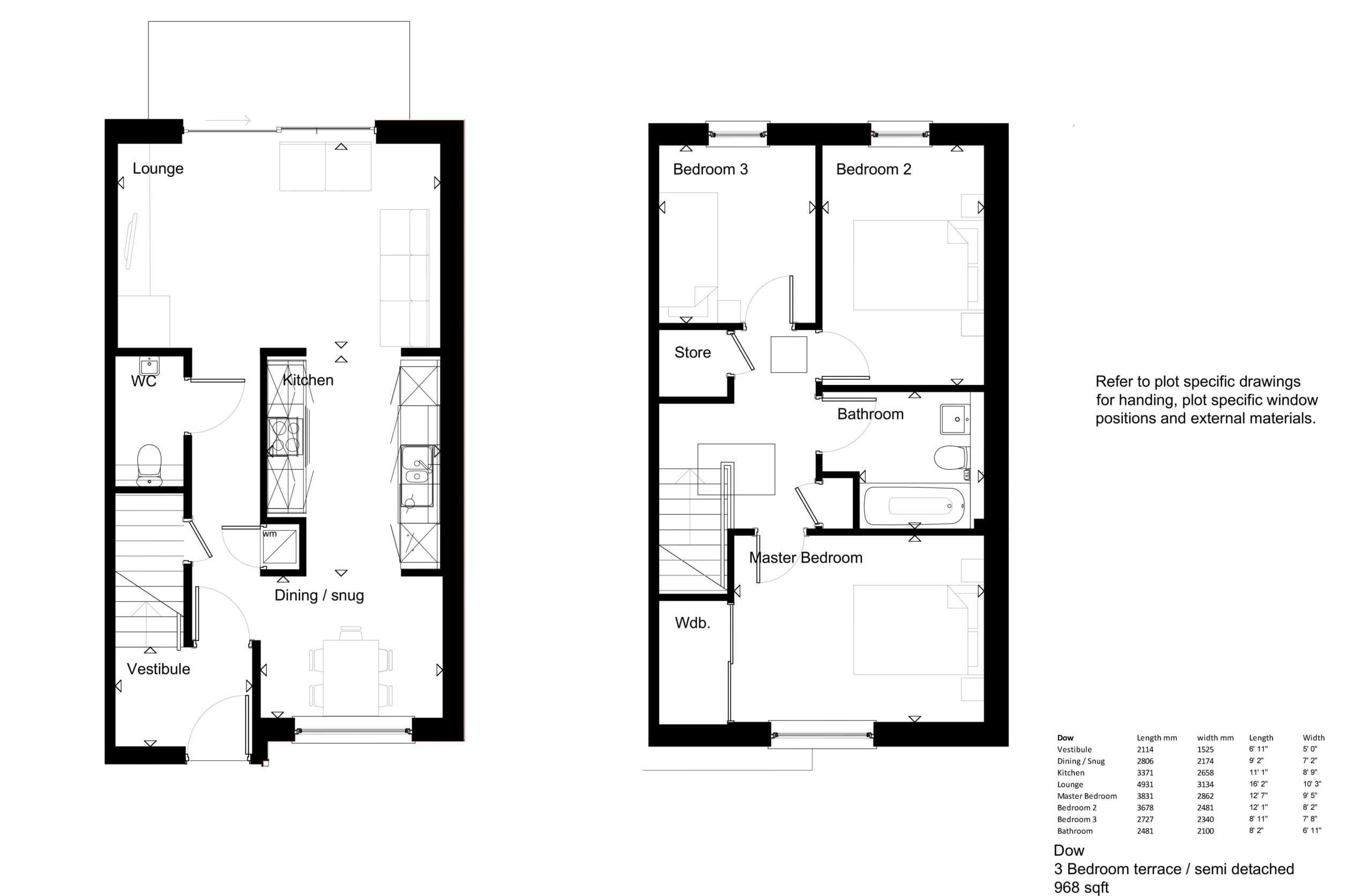
Floorplan

Overview

The Dow is a 3 bed Semi-detached or Mid-terrace new build home. As with all our homes it has a generous open plan living space, an abundance of natural light and good storage.

We have designed a well proportioned vestibule space, with room for a baby buggy or a basket for the dog. Somewhere to greet your guests or kick off your shoes.

The vestibule has a glazed door which leads to the open plan ground floor. The fully integrated kitchen is at the heart of this home. At the front of the house, we have created a dining area, which can be used for dining, home schooling or an office. The rear of the house is your living area, with large sliding patio doors to the private garden.

We have built the washing machine into its own cupboard, to keep it tucked away and give somewhere to store all those laundry essentials. The space under the stairs also provides additional storage and access to your meters and BT connection.

The master bedroom has deep, fully fitted wardrobes, with bi-fold doors. There is a second double bedroom and third single bedroom for children or a great home office. The landing also has a great size cupboard.

The family bathroom has back to wall white porcelain sanitaryware and chrome fittings (black fittings are an optional upgrade).

Upstairs, light fills the landing from either the hall window or Velux roof light.

Our houses have a dual control heating system for the ground and upper floor – with the control for the upstairs in the master bedroom.

Take a look around our Dow home

Hear from our Happy Home Owners