The Sinclair

A generous home entered via a covered porch with large, naturally lit vestibule which leads to the open plan ground floor - designed to create the feel of a loft apartment rather than a two-storey home.
Prices starting from £277,500
Property Type
House
Bedrooms
3
Bathrooms
2
Size
1125 sqft
Book a Visit
Development
Address:
Viewforth Gardens,
Kirkcaldy
KY1 3DG
See on Google Maps

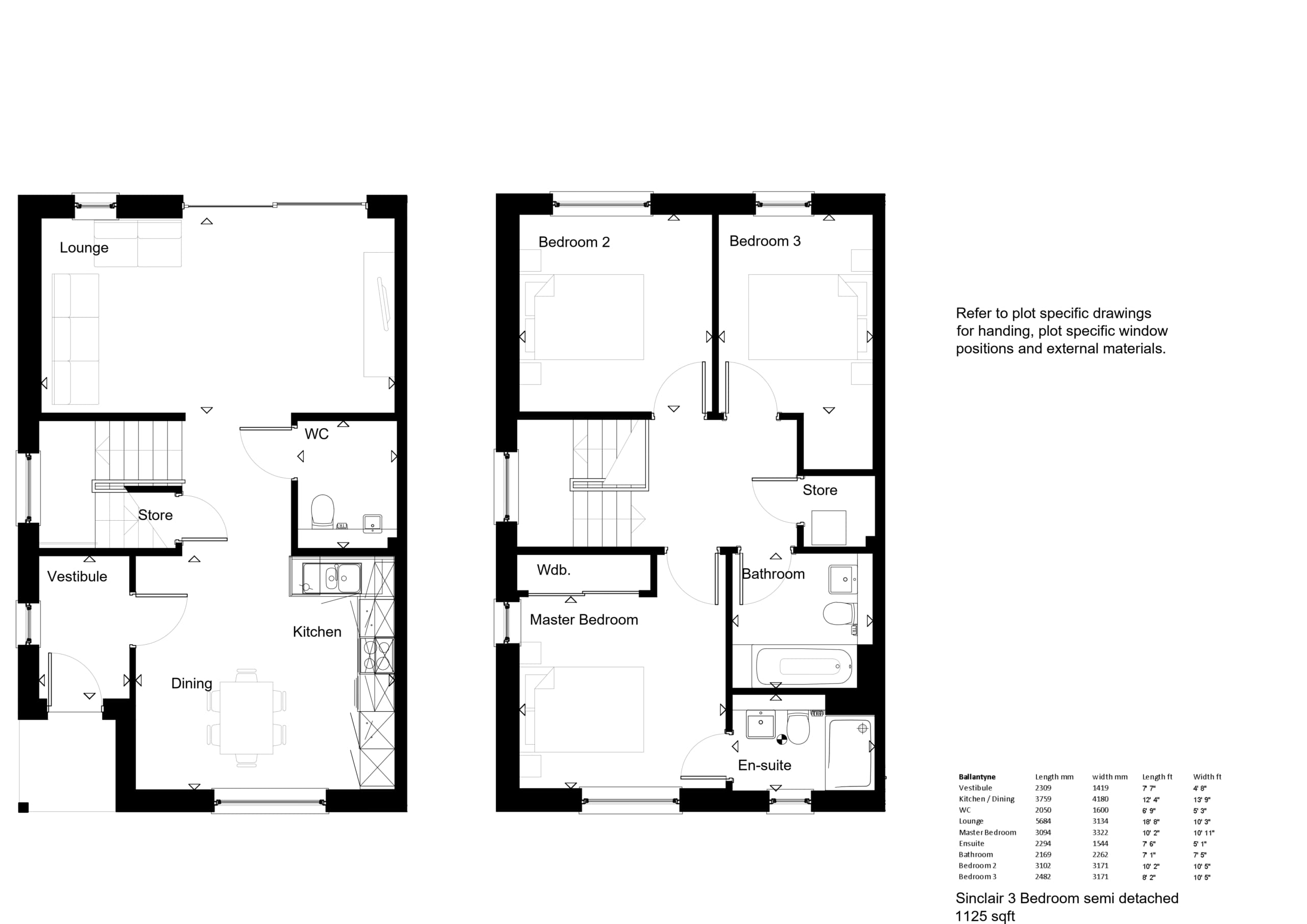
Floorplan

Overview

The Sinclair is a spacious open plan new build home with three double bedrooms. The Sinclair has great kerbside appeal. We’ve designed a lovely sheltered covered porch to welcome you to your front door. Once inside you have a large, light filled vestibule. The perfect space to hang up your coats, sort out your shoes, park your pram or dry off the dog.

The space and light throughout the open-plan ground floor creates the feel of a loft apartment rather than a two-storey new build home. With a large kitchen/family area at the front and the lounge at the rear of the house, the Sinclair combines practicality with style. The large sliding patio doors to the rear allow the interior and exterior spaces to merge.

The Sinclair has an entrance lobby which leads to the open plan ground floor. There are 3 double bedrooms, with ensuite and family bathroom. Harry Potter would love our understair cupboard.

There is also a convenient downstairs cloakroom with WC capable of future adaption as a shower room, together with a large under stair storage cupboard.

The open-plan stair features a half landing window and leads to the bright upper hall. Upstairs we have built the washing machine and boiler into its own large cupboard, to keep it tucked away and to give somewhere to store all those laundry essentials.

The master bedroom to the front has dual aspect windows and a large double fitted wardrobe. It has an en-suite shower, a must for any modern family. There are two further double bedrooms to the rear, and family bathroom with shower over bath, and back to wall white porcelain sanitary ware and chrome fittings.

Take a virtual tour around our Sinclair home…

Hear from our Happy Home Owners