The McGregor

The McGregor is a two bedroom upper floor apartment offering a bright and spacious modern open-plan living. It features a south facing private balcony, allowing you to make the most of the coastal views .
Prices starting from £195,000
Property Type
Apartment
Bedrooms
2
Bathrooms
1
Size
689 sqft
Book a Visit
Development
Address:
Viewforth Gardens,
Kirkcaldy
KY1 3DG
See on Google Maps

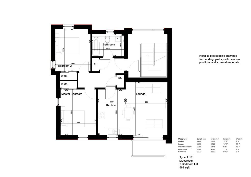
Floorplan

Overview

The McGregor upper floor apartments offer bright and spacious open-plan kitchen and living area with patio doors leading onto a south facing private balcony.

The McGregor is a first or second floor two bedroom apartment, accessed from bright spacious communal stairwell.

All accommodation is accessed from the entrance hallway which benefits from two large store cupboards.

The modern open-plan lounge/kitchen/dining is a bright, well-proportioned space with patio doors opening out to the south facing private balcony which allows light to flood into the space.

The kitchen area is fitted with a range of units with integrated induction hob, extractor hood, oven, washer/dryer, dishwasher and fridge/freezer.

Two bright double bedrooms, both featuring dual aspects windows and fitted wardrobes.

There is also a family contemporary style bathroom complete with shower over the bath in white porcelain sanitary ware and chrome fittings, giving you the option of a long relaxing soak to unwind after a busy day, or a quick shower.