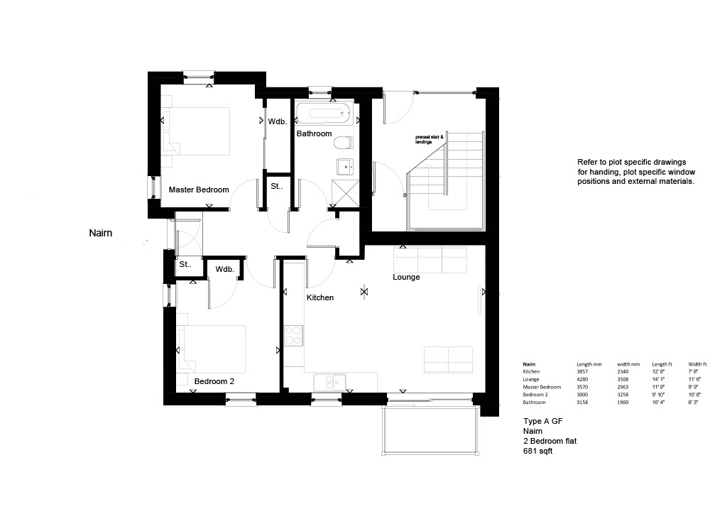
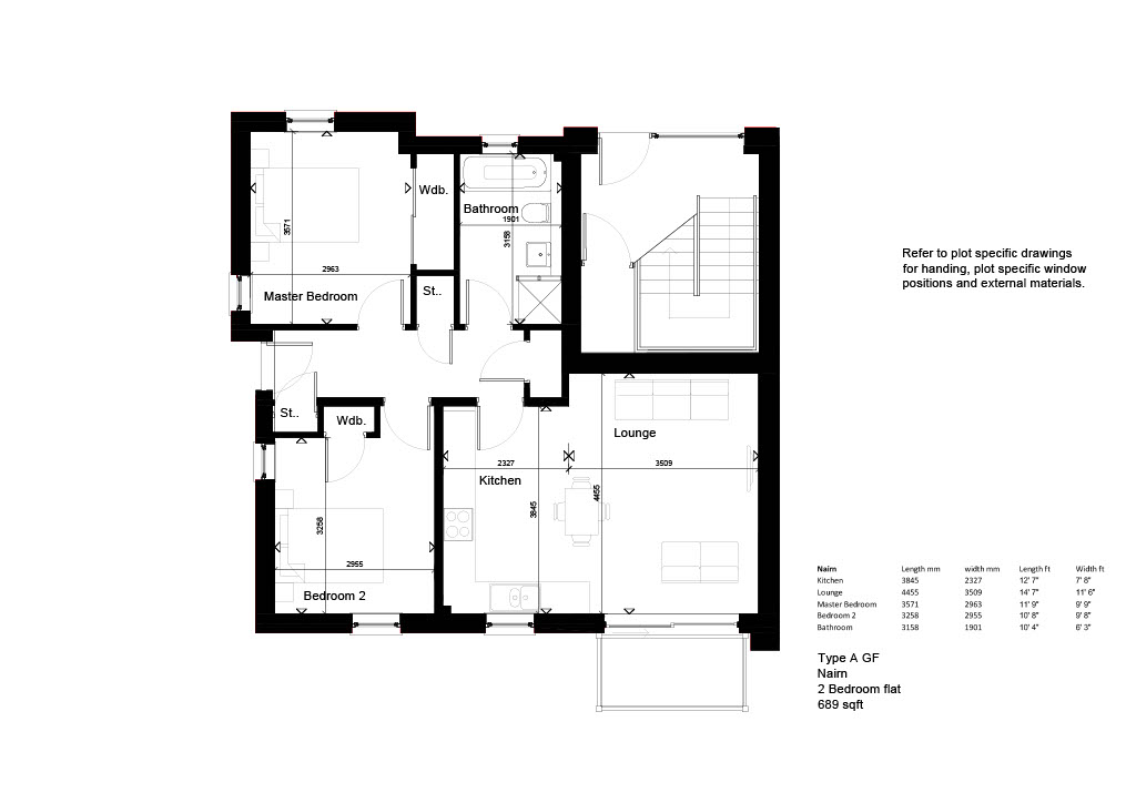
The Nairn

The Nairn is two bedroom ground floor main door apartment. It is designed to give modern open-plan living, with patio doors opening out to the south facing private balcony .
Prices starting from £192,500
Property Type
Apartment
Bedrooms
2
Bathrooms
1
Size
681 sqft
Book a Visit
Development
Address:
Viewforth Gardens,
Kirkcaldy
KY1 3DG
See on Google Maps

Floorplan

Two bedroom ground floor flat Viewforth Kirkcaldy KY1 3DG

Overview

The Nairn offers a bright and spacious open-plan kitchen and living area with patio doors leading onto a south facing private balcony.

The Nairn is a two bedroom main door apartment entered at ground floor level. All accommodation is accessed from the entrance hallway, which benefits from three store cupboards.

The modern open-plan lounge/kitchen/dining is a bright, well-proportioned space with patio doors opening out to the south facing private balcony, which allows light to flood into the space.

The kitchen area is fitted with a range of units with integrated induction hob, extractor hood, oven, washer/dryer, dishwasher, and fridge/freezer.

Two bright double bedrooms, each featuring dual aspect windows and ample storage space.

There is also a family contemporary style bathroom complete with shower over the bath in white porcelain sanitary ware and chrome fittings, giving you the option of a long relaxing soak to unwind after a busy day or a quick shower.