The Noble

Space and light are maximised in the Noble to create the ideal contemporary new build home. The spacious living room flows onto the kitchen/dining area with light flooding throughout the home.
Property Type
House Detached
Bedrooms
4
Bathrooms
2
Size
1356 sqft
Register Your Interest
Development
Address:
March Street,
Peebles
EH45 8EP
See on Google Maps

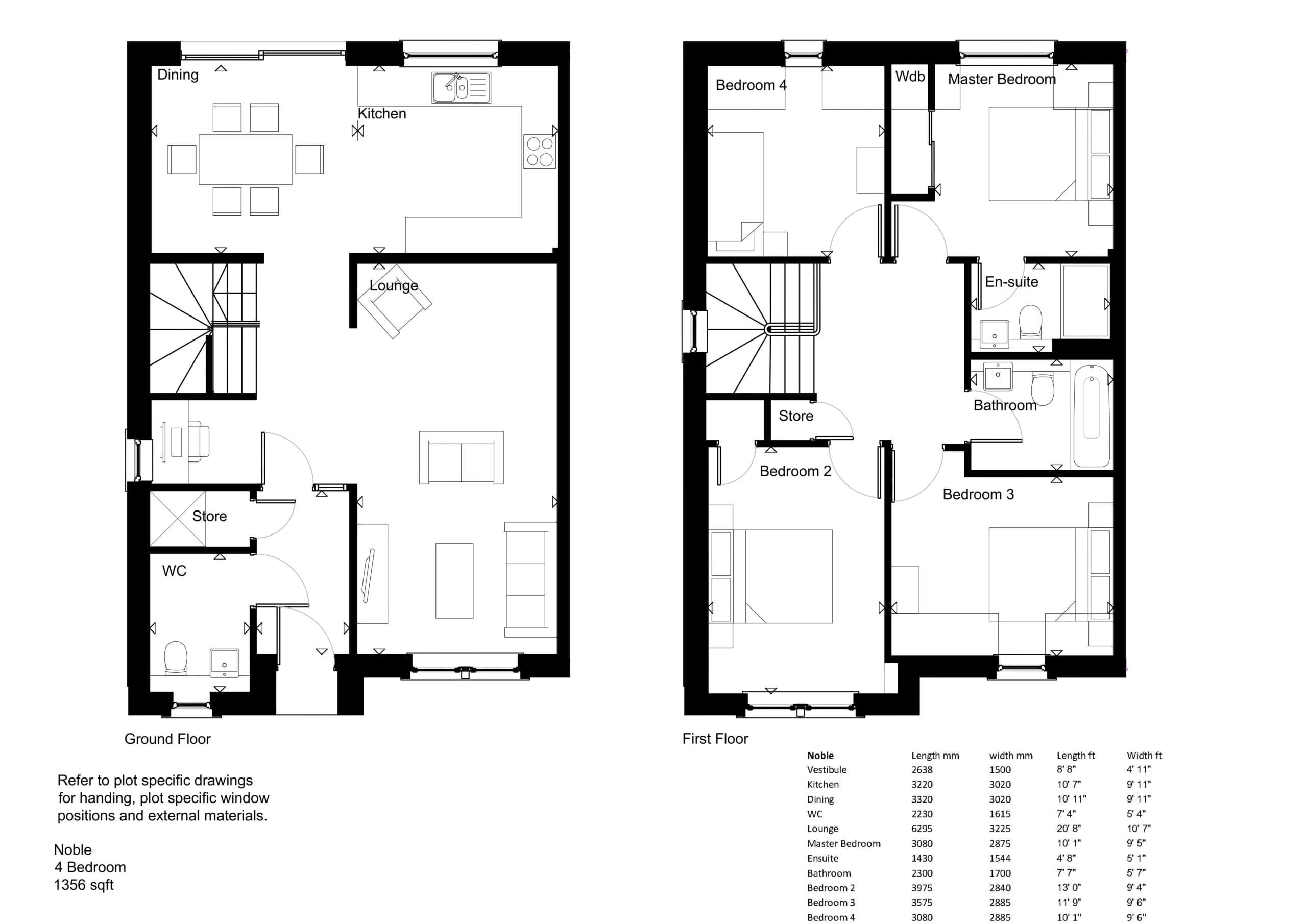
Floorplan

Overview

The Noble is a four bedroom semi-detached home. As with all our homes, it has generous open plan living space, and an abundance of natural light and good storage.

Entrance vestibule, designed with lovers of the great outdoors in mind, perfect for muddy dogs, prams/buggies or to kick off your shoes after a long walk.

There is a large downstairs cloakroom and two walk-in storage cupboards. The glazed hall door allows light to flow through the house.

The hallway leads into your living area with double aspect windows. The open plan ground floor layout is designed for the flow of modern life with a spacious open plan kitchen/dining area with patio doors out onto the private garden.

There’s a nook at the bottom of the stairs, a perfect work from home space.

The master bedroom benefits from large fitted wardrobes and features an en-suite shower room, finished in a clean and contemporary style with a choice of tile and sanitaryware fittings.

We’ve designed the Noble with a spacious upper landing, which has a store cupboard perfect as an airing cupboard. Bedrooms two and three are both good size double bedrooms. Bedroom 3 has a built in wardrobe. Bedroom four is a double bedroom designed with flexible double doors – it could be your perfect home office/ craft space or a guest bedroom.

The Noble has a family bathroom with shower over bath and back to wall white porcelain sanitaryware and chrome fittings as standard. Bathrooms come with a choice of tiling and counter top colours to suit style.

Take a look around our Noble home 

*Note – this is our Oliphant house type in our Viewforth Kirkcaldy development, featuring a similar floorplan*

Hear from our Happy Home Owners