The Oliphant

Space and light are maximised in the Oliphant to create the ideal contemporary new build home. The spacious living room flows onto the kitchen/dining area with light flooding throughout the home.
Property Type
House Detached
Bedrooms
4
Bathrooms
2
Size
1310 sqft
Register Your Interest
Development
Address:
Stow Road
Lauder
TD2 6RN
See on Google Maps

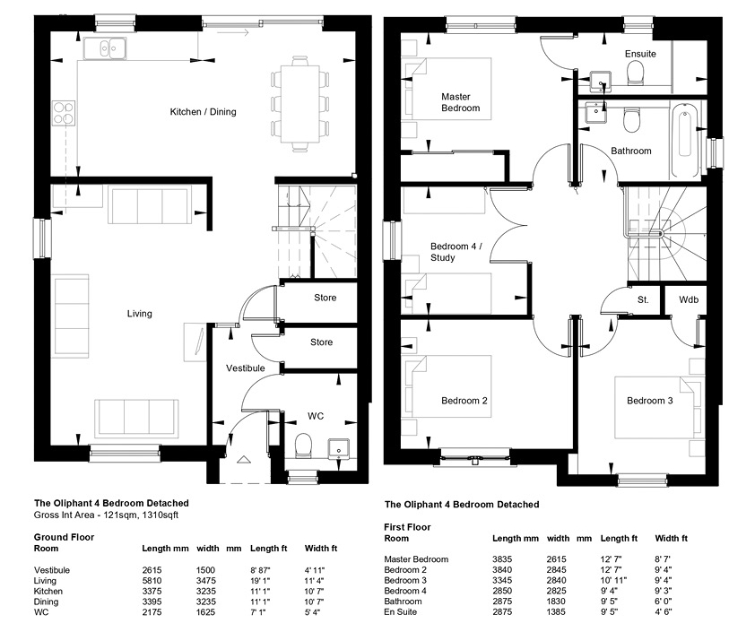
Floorplan

Overview

The Oliphant is a four bedroom home. As with all our homes, it has generous open plan living space and an abundance of natural light and good storage.

Entrance vestibule, designed with lovers of the great outdoors in mind, perfect for muddy dogs, prams/buggies or to kick off your shoes after a long walk.

There is a large downstairs cloakroom and two walk-in storage cupboards. The glazed hall door allows light to flow through the house.

The hallway leads into your living area with double aspect windows. The open plan ground floor layout is designed for the flow of modern life with a spacious open plan kitchen/dining area with patio doors out onto the private garden.

There’s a nook at the bottom of the stairs, a perfect work from home space.

The master bedroom benefits from large fitted wardrobes and features an en-suite shower room, finished in a clean and contemporary style with a choice of tile and sanitaryware fittings.

We’ve designed the Oliphant with a spacious upper landing, which has a store cupboard perfect as an airing cupboard. Bedrooms two and three are both good size double bedrooms. Bedroom three has a built in wardrobe. Bedroom four is a double bedroom designed with flexible double doors – it could be your perfect home office/ craft space or a guest bedroom.

The Oliphant has a family bathroom with shower over bath and back to wall white porcelain sanitaryware and chrome fittings as standard. Bathrooms come with a choice of tiling and counter top colours to suit style.

Take a look around our Oliphant home

Hear from our Happy Home Owners